Мы используем куки-файлы. Соглашение об использовании
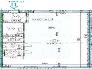
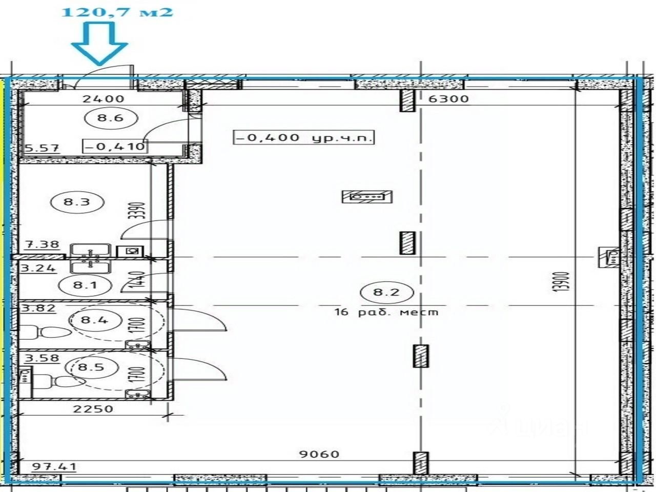
Помещение свободного назначения, 120,7 м²
Площадь120,7 м²
Этаж1 из 1
Отчёт о привлекательности объектаУзнайте, насколько помещение и район подходят для вашего бизнеса
Что входит в отчёт
  • Охват населения
  • Пешеходный трафик
  • Автомобильный трафик
  • Средний бюджет семьи по району
  • Арендные ставки рядом
  • Точки притяжения
  • Конкуренты в радиусе 1 км
  • Рекомендации по выбору места для бизнеса
ПРЯМАЯ АРЕНДА от собственника в ЖК СТОЛИЧНЫЙ. В аренду предлагается коммерческое помещение формата street retail. ЖК "Столичный" один из крупнейших и перспективных районов Железнодорожного. Территория жилого квартала состоит из северной и южной частей.Помещение с отделкой. ЖК "Столичный" расположен в окружении Саввинских прудов и Пестовского парка, которые вместе с благоустроенной территорией комплекса образуют единый ландшафтно-парковый ансамбль площадью более 90 га. Помещение находится в локации с хорошим трафиком.Дома сданы и заселены. Лот 000003702
lock

Войдите или зарегистрируйтесь
для просмотра информации

Просматривайте условия сделки и всю информацию об объекте
Сохраняйте фильтры в поиске и не вводите заново
Доступ к избранному с любого устройства
Неограниченное добавление в избранное
Позвоните автору
Вам ответят на все вопросы
Остались вопросы по объявлению?
Позвоните владельцу объявления и уточните необходимую информацию.
  • Инфраструктура
  • Похожие рядом
  • Тип зданияЖилой комплекс
  • Общая площадь120,7 м²
Центральное отопление
Помощь надёжных риелторов
Риелтор партнёр Циан поможет купить или продать любую недвижимость
Управляющая компанияПрофис-недвижимость
Суперагент
  • 14 лет 9 месяцев на Циане
  • 301 объявление
  • 231 342 ₽/мес.
    3 164 $/мес.
    2 716 /мес.
    Цена за метр
    23 000 ₽ в год
    Налог
    НДС включен: 41 712 ₽
    Комиссия
    нет
    Коммунальные платежи
    не включены
    Эксплуатационные расходы
    включены
    Управляющая компанияПрофис-недвижимость
    Суперагент