Мы используем куки-файлы. Соглашение об использовании
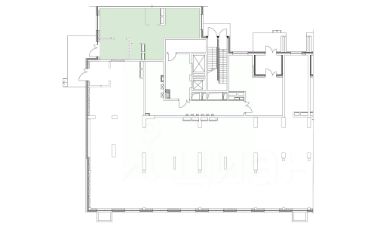
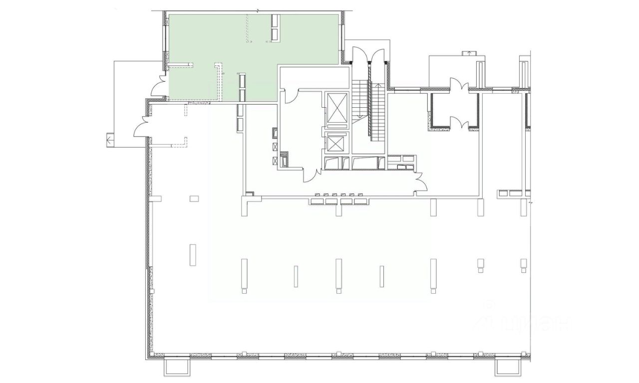
Помещение свободного назначения, 56,1 м²

Сдается помещение свободного назначения, 56,1 м²

Площадь56,1 м²
Этаж1 из 18
Отчёт о привлекательности объектаУзнайте, насколько помещение и район подходят для вашего бизнеса
Что входит в отчёт
  • Охват населения
  • Пешеходный трафик
  • Автомобильный трафик
  • Средний бюджет семьи по району
  • Арендные ставки рядом
  • Точки притяжения
  • Конкуренты в радиусе 1 км
  • Рекомендации по выбору места для бизнеса
Сдаётся коммерческое помещение в ЖК "Новая Алексеевская роща" Коммерческое помещение площадью 56,1 кв. м расположено на 1-м этаже жилого дома комфорт-класса в развивающемся районе Балашихи. ЖК "Новая Алексеевская роща" находится всего в 6 км от МКАД по Щёлковскому шоссе, вблизи станции метро "Щёлковская", в окружении плотной жилой застройки и природных зон - рядом река Пехорка и национальный парк "Лосиный Остров". Локация активно развивается и формирует устойчивый пешеходный и автомобильный трафик. Комплекс ориентирован на постоянное проживание семей, что обеспечивает высокий спрос на повседневные товары и услуги. Дополнительный поток создаёт собственная инфраструктура ЖК: детский сад, школа и поликлиника. Ключевые преимущества: Отдельный вход с улицы Место под вывеску Витринное остекление, обеспечивающее хорошую видимость и привлечение клиентов Помещение без отделки - возможность реализовать любой формат бизнеса Все инженерные коммуникации подключены (вода, канализация, электричество, отопление) Высота потолков: 3 м Выделенная мощность: 11,2 кВт Предоставляются арендные каникулы Помещение подойдёт для размещения магазина, кафе или пекарни, аптеки, салона красоты, пункта выдачи заказов, офиса услуг или медицинского кабинета. ЖК "Новая Алексеевская роща" - это перспективная локация с растущей аудиторией и дефицитом качественной коммерческой инфраструктуры, что создаёт благоприятные условия для стабильного и прибыльного бизнеса. Аренда без посредников - напрямую от собственника: УК "Аструм Недвижимость" (ГК "Гранель") Наши менеджеры помогут подобрать оптимальное помещение под ваши задачи. Свяжитесь с нами, чтобы получить подробную информацию.
lock

Войдите или зарегистрируйтесь
для просмотра информации

Просматривайте условия сделки и всю информацию об объекте
Сохраняйте фильтры в поиске и не вводите заново
Доступ к избранному с любого устройства
Неограниченное добавление в избранное
Позвоните автору
Вам ответят на все вопросы
Остались вопросы по объявлению?
Позвоните владельцу объявления и уточните необходимую информацию.
  • Инфраструктура
  • Похожие рядом
  • Тип зданияЖилой дом
  • Общая площадь56,1 м²
Помощь надёжных риелторов
Риелтор партнёр Циан поможет купить или продать любую недвижимость
78 540 ₽/мес.

Прямая аренда (от года), доступны арендные каникулы, обеспечительный платёж 157080 ₽

1 103 $/мес.
951 /мес.
Цена за метр
16 800 ₽ в год
Налог
НДС включен: 14 162 ₽
Комиссия
нет
Коммунальные платежи
не включены
Эксплуатационные расходы
не включены
Агентство недвижимости
Документы проверены
На Циан
4 года
Объектов в работе
102
3,7・3