Мы используем куки-файлы. Соглашение об использовании

Аренда отапливаемого склада 50 м²

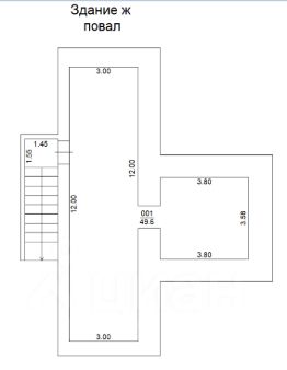
Площадь50 м²
Этаж-1 из 1
Отчёт о привлекательности объектаУзнайте, насколько помещение и район подходят для вашего бизнеса
Что входит в отчёт
  • Охват населения
  • Пешеходный трафик
  • Автомобильный трафик
  • Средний бюджет семьи по району
  • Арендные ставки рядом
  • Точки притяжения
  • Конкуренты в радиусе 1 км
  • Рекомендации по выбору места для бизнеса
Сдаётся в аренду тёплый склад площадью 50 кв.м в подвале по адресу: Балашиха, пр-т Ленина, 2. Отличное решение для хранения товаров, оборудования и стабильной работы бизнеса. Преимущества: — Отапливаемое помещение — подходит для круглогодичного хранения — Подвальный формат — защита от перепадов температуры и внешних воздействий — Оптимальная площадь 50 м² — удобное размещение товара — Удобный доступ для загрузки/выгрузки — Надёжное помещение для долгосрочной аренды Подходит для: складирования товаров, интернет-магазинов, маркетплейсов (Ozon, Wildberries), хранения оборудования, архивов, запчастей и сезонной продукции. Локация в Балашихе — удобная транспортная доступность и быстрый выезд на основные магистрали. Звоните или пишите — подберём удобные условия аренды и покажем помещение!
lock

Войдите или зарегистрируйтесь
для просмотра информации

Просматривайте условия сделки и всю информацию об объекте
Сохраняйте фильтры в поиске и не вводите заново
Доступ к избранному с любого устройства
Неограниченное добавление в избранное
Позвоните автору
Вам ответят на все вопросы
Остались вопросы по объявлению?
Позвоните владельцу объявления и уточните необходимую информацию.
  • Инфраструктура
  • Похожие рядом
  • Общая площадь50 м²
Центральное отопление
Помощь надёжных риелторов
Риелтор партнёр Циан поможет купить или продать любую недвижимость
Отдел арендыАВС
Суперагент
  • 15 лет 6 месяцев на Циане
  • 22 объявления
  • 49 000 ₽/мес.

    Прямая аренда (от года), минимальный срок аренды 11 месяцев, обеспечительный платёж 49000 ₽, предоплата за 1 месяц

    687 $/мес.
    585 /мес.
    Цена за метр
    11 760 ₽ в год
    Налог
    УСН
    Комиссия
    нет
    Коммунальные платежи
    не включены
    Эксплуатационные расходы
    не включены
    Отдел арендыАВС
    Суперагент