Мы используем куки-файлы. Соглашение об использовании
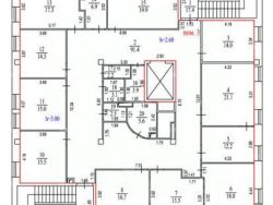
Площадь1 676 м²
Этаж1
Отчёт о привлекательности объектаУзнайте, насколько помещение и район подходят для вашего бизнеса
Что входит в отчёт
  • Охват населения
  • Пешеходный трафик
  • Автомобильный трафик
  • Средний бюджет семьи по району
  • Арендные ставки рядом
  • Точки притяжения
  • Конкуренты в радиусе 1 км
  • Рекомендации по выбору места для бизнеса
Лот 160488. Продается отдельно стоящее 4-этажное здание с подземным этажом с арендатором в Балашихе. Объект находится в статусе доходного бизнеса с надежным арендатором "ABC-Медицина". 15 минут на машине от м. "Новогиреево". Первая линия Горенского бульвара, напротив автобусная остановка и места УДС городской парковки. Технические характеристики: Общая площадь: 1676 кв. м. 4 наземных этажа и 1 подземный. Выполнен качественный ремонт и полное оснащение. Коммерческие условия: Стоимость объекта: 217 143 000 руб. вкл. НДС. Арендатор: клиника федеральной сети "ABC-Медицина". ДДА на 10 лет. МАП: 1 787 733 руб. вкл. НДС. ГАП: 21 452 796 руб. вкл. НДС.
lock

Войдите или зарегистрируйтесь
для просмотра информации

Просматривайте условия сделки и всю информацию об объекте
Сохраняйте фильтры в поиске и не вводите заново
Доступ к избранному с любого устройства
Неограниченное добавление в избранное
Позвоните автору
Вам ответят на все вопросы
Остались вопросы по объявлению?
Позвоните владельцу объявления и уточните необходимую информацию.
  • Инфраструктура
  • Похожие рядом
Помощь надёжных риелторов
Риелтор партнёр Циан поможет купить или продать любую недвижимость
217 143 000 ₽
2 886 120 $
2 457 011
Цена за метр
129 561 ₽
Налог
НДС включен: 39 156 934 ₽
Агентство недвижимости
Документы проверены
На Циан
9 лет
Объектов в работе
более 2000
Риелтор