Мы используем куки-файлы. Соглашение об использовании

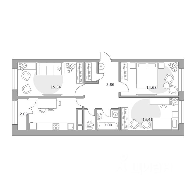
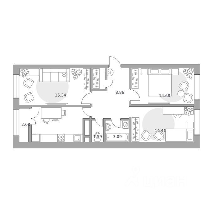
Продается 3-комн. квартира, 72,75 м²

Общая площадь72,75 м²
Жилая площадь44,4 м²
Площадь кухни10,9 м²
Этаж4 из 25
Год сдачи2026
ДомНе сдан
ОтделкаБез отделки
Продаётся 3-комнатная квартира 1003, площадью 72,75 м², на 4 этаже в ЖК "Пехра" корпус 8. Стоимость — от 13707481 руб. Квартира без отделки, планировка распашная, окна во двор.

О квартире

Тип жилья

Новостройка

Общая площадь

72,75 м²

Жилая площадь

44,4 м²

Площадь кухни

10,9 м²

Высота потолков

2,57 м

Вид из окон

На улицу и двор

Отделка

Без отделки

О доме

Количество лифтов

12 грузовых

Тип дома

Монолитный

Пандус

Есть

Понравилась квартира — узнайте о ней больше

Застройщик ответит на все вопросы

Варианты отделки в ЖК

  • Чистовая
  • Без отделки
  • Предчистовая

3D-тур

Посмотрите 3D-тур, чтобы оценить объект

О ЖК «Пехра»

  • Сдача комплекса
    Сдача в 3 кв. 2026, есть сданные
  • Застройщик
    ГК Гранель
  • Класс
    Комфорт
  • Тип дома
    Монолитный
  • Парковка
    Отдельная многоуровневая, гостевая
  • Отделка
    Без отделки, предчистовая, чистовая
  • Тип комплекса
    Жилой комплекс
Похоже на то, что вы ищете?

Особенности жилого комплекса

  • Внутренний двор

  • Парки

  • Архитектура

  • Входная группа

Подробнее о жилом комплексе

Акции в ЖК «Пехра»

Узнайте про персональные условия и дополнительные скидки при покупке квартиры у застройщика

Рассрочка 0%

Материнский капитал

Военная ипотека

Ипотечный калькулятор
  • Базовая
  • Семейная
  • ИТ-ипотека
  • 20%
  • 30%
  • 40%
  • 50%
лет
  • 10 лет
  • 20 лет
  • 30 лет
Загружаем предложения от застройщика и банков
Корпус проверен наш.дом.рф
Обновлено 23 апреля 2026
  • Нет в реестре проблемных объектов
  • Застройщик не банкрот
  • Есть эскроу счёт
  • Актуальные фото стройки

Ещё квартиры в жилом комплексе

239 квартир в продаже · Сдача в 3 кв. 2026, есть сданные
ЗастройщикГК Гранель
Год основания: 1992
Строится: 40 домов в 15 ЖК
13 707 480 ₽
Цена за метр
188 419 ₽/м²
Условия сделки
свободная продажа