Мы используем куки-файлы. Соглашение об использовании

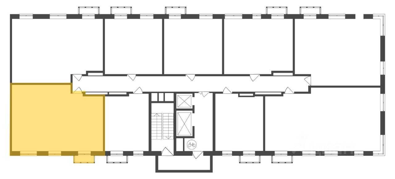
Продается 3-комн. квартира, 59,2 м²

Транспортная доступность 2,5 из 10Подробнее
Общая площадь59,2 м²
Жилая площадь24,2 м²
Площадь кухни16,4 м²
Этаж5 из 17
Год сдачи2025
ДомСдан
ОтделкаЧистовая
Продаётся 3-комнатная квартира 59.2 кв. м. в жилом комплексе "Героев" в Балашихе, Железнодорожный. Квартира расположена на 5 этаже 406 корпуса. Все квартиры представлены с чистовой отделкой. Вам не нужно тратить время и дополнительные финансы на ремонт или жить в шуме строительных работ - достаточно перевести свои вещи, расставить мебель и всё готово! Жилой квартал "Героев" - это уютный проект для семей с детьми. Всего 40 минут до центра Москвы. В квартале созданы все условия для досуга всех возрастов: игровые и спортивные площадки, места для отдыха и прогулок, магазины, кафе и пункты выдачи. За 15 минут можно дойти от дома до Ольгинского лесопарка - популярного места для прогулок и отдыха на свежем воздухе. Здесь приятно гулять всей семьёй, заниматься спортом или устроить пикник в выходной день. Преимущества: Квартира с готовой отделкой. Пространство полностью подготовлено для жизни: не нужно тратить время и деньги на ремонт или ждать его окончания. После получения ключей достаточно расставить мебель - и можно сразу заезжать и жить. Продуманные и светлые планировки. Просторные кухни-гостиные создают комфортное пространство для отдыха и встреч с близкими. В квартирах предусмотрены удобные гардеробные, благодаря чему легко поддерживать порядок и не перегружать комнаты шкафами. Увеличенное остекление. Большие окна наполняют квартиру естественным светом в течение всего дня, создавая ощущение простора и уюта, а также визуально расширяя пространство и делая интерьер более воздушным. Пешая доступность до станции Железнодорожная (МЦД-4) - дорога займёт не более 30 минут до центра Москвы: станции метро "Курская", "Площадь Ильича" или ТПУ Нижегородская.

О квартире

Тип жилья

Новостройка

Общая площадь

59,2 м²

Жилая площадь

24,2 м²

Площадь кухни

16,4 м²

Высота потолков

2,8 м

Санузел

2 совмещенных

Балкон/лоджия

1 балкон

Вид из окон

Во двор

Отделка

Чистовая

О доме

Количество лифтов

1 пассажирский, 1 грузовой

Тип дома

Монолитный

Понравилась квартира — узнайте о ней больше

Застройщик ответит на все вопросы

Отделка квартиры

Чистовая: ремонт сделан, остаётся расставить мебель и заселиться

3D-тур

Посмотрите 3D-тур, чтобы оценить объект

О ЖК «Героев»

  • Сдача комплекса
    Сдача в 2026—2027, есть сданные
  • Застройщик
    Главстрой Регионы
  • Класс
    Комфорт
  • Тип дома
    Монолитно-кирпичный, монолитный
  • Парковка
    Гостевая
  • Отделка
    Чистовая
  • Тип комплекса
    Жилой комплекс
Похоже на то, что вы ищете?

Особенности жилого комплекса

  • Отделка

  • Внутренний двор

  • Архитектура

  • Входная группа

  • Лифт

Подробнее о жилом комплексе

Акции в ЖК «Героев»

Узнайте про персональные условия и дополнительные скидки при покупке квартиры у застройщика
logo

Квартиры недели

logo

Скидки на квартиры до 16%

logo

Специальные условия для «СВОих»

Маткапитал в 1-й взнос по ипотеке

Ипотечный калькулятор
  • Базовая
  • Семейная
  • ИТ-ипотека
  • 20%
  • 30%
  • 40%
  • 50%
лет
  • 10 лет
  • 20 лет
  • 30 лет
Загружаем предложения от застройщика и банков
Корпус проверен наш.дом.рф
Обновлено 5 марта 2025
  • Нет в реестре проблемных объектов
  • Застройщик не банкрот

Ещё квартиры в жилом комплексе

499 квартир в продаже · Сдача в 2026—2027, есть сданные
ЗастройщикГлавстрой Регионы
Год основания: 1995
Строится: 15 домов в 2 ЖК
16 185 280 ₽
Цена за метр
273 400 ₽/м²
Условия сделки
долевое участие (214-ФЗ)
Бесплатно найдём новостройкуИ поможем на сделке