Мы используем куки-файлы. Соглашение об использовании
Общая площадь23,2 м²
Жилая площадь12,7 м²
Площадь кухни2,9 м²
Этаж14 из 17
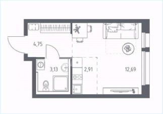
Арт. 132826026 Продается Студия в ЖК "Квартал Авиаторов" Студия расположена на 14 этаже 17-этажного жилого дома. Дом сдан!!! Уютная светлая квартира с отличным видом из окна. Комната 12.69 м2, кухня -ниша 2.91 м2 , прихожая 4.75 м2, санузел совмещенный 3.13 м2. Важные преимущества ЖК: - коммерческая инфраструктура на первых этажах; - приватные дворы с прогулочными дорожками и зонами отдыха; - дизайнерские входные группы; - помещения для колясок и велосипедов; - охрана и видеонаблюдение. -парковка Отдельная многоуровневая Отличная транспортная доступность: м. Салтыковская - 13 минут на машине. м. Реутов -14 минут на машине Проект "Квартал Авиаторов" расположен между крупными автомагистралями: Щелковским шоссе и шоссе Энтузиастов. До выезда на МКАД — 8 км. Если хочется окунуться с головой в энергию мегаполиса, то понадобится час, чтобы на автомобиле добраться до центра Москвы. Доехать до станции метро "Щелковская" удастся за 20 минут. Дорога на автомобиле до ж/д станции Балашиха займет 5 минут, до Курского вокзала можно доехать за 40 минут. Поблизости находится национальный парк "Лосиный остров": доехать на автомобиле получится за 11 минут. Отличная возможность приобрести квартиру в перспективном Жилом комплексе,где цена будет только расти.Не упустите ее!!! Звоните, отвечу на все ваши вопросы 1 взрослый собственник,быстрый выход на сделку. Для наших покупателей: * помощь в получении ипотеки в ведущих банках, с высокой степенью одобрения * специальные скидки по ставкам 0.3-1% * одобрение ипотеки по субсидированным ставкам от 12.25%, консультация бесплатно * юридическое сопровождение сделки
Позвоните автору
Вам ответят на все вопросы

О квартире

Тип жилья

Вторичка

Общая площадь

23,2 м²

Жилая площадь

12,7 м²

Площадь кухни

2,9 м²

Санузел

1 совмещенный

Вид из окон

Во двор

Ремонт

Без ремонта

О доме

Год постройки

2025

Строительная серия

Индивидуальный проект

Количество лифтов

2 пассажирских

Тип перекрытий

Нет информации

Отопление

Нет информации

Аварийность

Нет

Спросите умного помощника
Получите экспертное мнение о жилье

Расположение

Ипотечный калькулятор
  • Базовая
  • Семейная
  • ИТ-ипотека
  • 20%
  • 30%
  • 40%
  • 50%
лет
  • 10 лет
  • 20 лет
  • 30 лет
Загружаем предложения от застройщика и банков
7 300 000 ₽
Эксперт от ЦианаПомощь с поиском и гарантия безопасной сделки
Цена за метр
314 655 ₽/м²
Условия сделки
свободная продажа
Ипотека
возможна
Агентство недвижимости
Документы проверены
На Циан
менее года
Объектов в работе
40