Мы используем куки-файлы. Соглашение об использовании
С мебелью
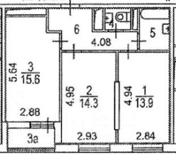
Общая площадь56,5 м²
Жилая площадь28,2 м²
Площадь кухни15,6 м²
Этаж5 из 16
Комфортабельный, уютный микрорайон Центр-2. Самый современный и востребованный район города. Квартира 3-евро формата в новом доме с качественным ремонтом и удобной планировкой. Кухня гостиная 15,6 кв.м с выходом на просторный балкон идеальная зона для семьи и приема гостей. Квартира продаётся со всей мебелью, полностью готова к проживанию. Все продуманно для комфорта большой семьи. Две изолированные и удобные комнаты тишина и личное пространство у каждого. Раздельный санузел с большой ванной - редкость и большой плюс. Окна выходят во "двор без машин", в квартире всегда тихо и спокойно, нет шума от проезжей части. Вся инфраструктура в шаговой доступности: 4 школы, 4 детских сада, магазины, маркетплейсы, ТЦ Конфитюр, много развивающих центров для детей, фитнес центр, мед. центры, аптеки, кафе, оборудованные спортивные и детские площадки, Ольгинский лесопарк, сочетающий вековой лес с современной инфраструктурой, - все, что нужно для комфортной жизни! Удобное транспортное сообщение с Москвой - до ж/д станции МЦД -4 Железнодорожная 10-15 мин пешком, на экспрессе до м. Курская 25 мин, до МЦК - 15 мин. Ходят маршрутки до м. Новокосино, Выхино, Некрасовка, Щелковская. Один собственник. Материнский капитал не использовался. Без обременений, перепланировок и долгов. Квартира проверена и рекомендована МИЭЛЬ! Звоните!
Позвоните автору
Вам ответят на все вопросы

О квартире

Тип жилья

Вторичка

Общая площадь

56,5 м²

Жилая площадь

28,2 м²

Площадь кухни

15,6 м²

Санузел

1 раздельный

Балкон/лоджия

1 лоджия

Вид из окон

Во двор

Ремонт

Евроремонт

Продаётся с мебелью

Да

О доме

Год постройки

2020

Строительная серия

Индивидуальный проект

Тип дома

Кирпичный

Тип перекрытий

Железобетонные

Подъезды

3

Отопление

Центральное

Аварийность

Нет

Спросите умного помощника
Получите экспертное мнение о жилье

Расположение

Ипотечный калькулятор
  • Базовая
  • Семейная
  • ИТ-ипотека
  • 20%
  • 30%
  • 40%
  • 50%
лет
  • 10 лет
  • 20 лет
  • 30 лет
Загружаем предложения от застройщика и банков
11 950 000 ₽
Эксперт от ЦианаПомощь с поиском и гарантия безопасной сделки
Цена за метр
211 504 ₽/м²
Условия сделки
альтернатива
Ипотека
возможна
Агентство недвижимости
Суперагент