С мебелью
Щёлковская
16 минут на транспорте
12 050 000 ₽
179 851 ₽/м²
id:369.
Вас приветствует АН "Светайло, Ахсалба и Партнеры" (г. Москва, действующие члены Гильдии Риелторов Москвы и РГР)!
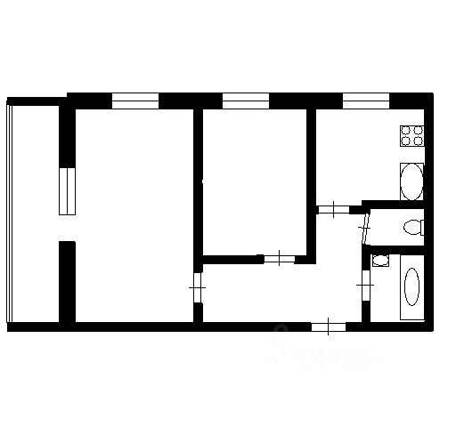
В продаже - 2-х комнатная квартира, расположенная на 14 этаже в новом современном монолитно-кирпичном доме.
В квартире, общей площадью 66,5 кв.м. (согласно Выписке из ЕГРН) - 2 изолированные комнаты (гостиная - 20 кв.м., спальня - 14 кв.м.); кухня, оснащенная новой кухонной мебелью (ставили осенью 2025 г.) с новой встроенной техникой; просторный холл с вместительным шкафом-купе; раздельный санузел (оснащен бойлером).
Квартира линейного расположения, с выходом окон - во двор дома. Есть просторный застекленный балкон (летнее остекление). В зале установлен новый кондиционер.
Квартира расположена в 6-й секции дома (в данной секции всего 14 этажей). Из плюсов - наш тамбур всего на 2 квартиры (закрытый, установлена камера видео-наблюдения в лифтовом холле). Дом - 2013 года постройки, давно заселен и расположен вдоль реки. Имеет свою собственную инфраструктуру (магазин "Магнит", ПВЗ "Озон", "Яндекс.Маркет", "Авито", барбер-шоп, студии детского развития, кофейня и много другое).
Инфраструктура 21-го микрорайона "Поле Чудес" - сложившаяся, рядом несколько школ, детских садов, магазинов, отделение Сбера. За домом - ФОК "Метеор" с бассейном. Рядом с домом - протекает река Пехорка, а в 10-ти минутах от дома расположены 2 парковые зоны отдыха для всей семьи.
Транспортная доступность обеспечивается наличием большого количества автобусов и маршруток, с возможностью добраться до ближайших станций метро "Щелковская", "Новогиреево", "Выхино", ж/д-станции "Балашиха" или до 2-х станций МЦД-4 (Салтыковская, Никольское).
1 взрослый Собственник, полная стоимость в договоре, правоустановка - ДКП (2014 г.). Без обременений, без использования средств мат.капитала. Чистый юридически объект. Готовы к оперативному выходу на сделку. Объект подходит под условия ипотеки любого банка РФ.
Показы - по договоренности.
Звоните, уважаемые Покупатели и Коллеги! Продам 2-комнатную квартиру в микрорайоне Поле чудес в городе Балашиха.










































































