135 644 ₽/м²
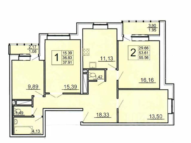
Просторная квартира площадью 101 кв.м расположена на 14-м этаже монолитно-кирпичного дома, построенного в 2014 году. Дом относится к центральной секции 26-этажного комплекса, оснащен четырьмя лифтами и предлагает комфортное проживание с четырьмя квартирами на этаже и закрытым общим холлом. Квартира выполнена по индивидуальному проекту с согласованной перепланировкой, что обеспечивает рациональное использование пространства. В отделке использованы качественные импортные материалы и сантехника. Планировка включает четыре жилые комнаты: просторную гостиную с кухонной зоной, спальню-кабинет и две детские. Дополнительные удобства — два раздельных санузла, гардеробная и кладовая. В квартире установлены теплые полы и система приточно-вытяжной вентиляции Systemair с увлажнителем Carel, что создает комфортный микроклимат в любое время года. Вся мебель и техника остаются новому владельцу: встроенные шкафы в каждой комнате, диван-кровать, кухня с бытовой техникой Bosch и Electrolux, включая духовой шкаф с функцией микроволновки, варочную панель, посудомоечную и стиральную машины, а также бойлер для бесперебойного горячего водоснабжения. Дом находится в зеленой части микрорайона Гагарина по Балашихинскому шоссе, всего в 5 км от МКАД. Район отличается развитой инфраструктурой: в пешей доступности три школы, два детских сада, игровые площадки, сетевые магазины и лесной массив с велодорожками и прогулочными тропами. Транспортная доступность на высоком уровне: удобный выезд на Щелковское шоссе, выделенная полоса для общественного транспорта, связывающая район с метро. Для автомобилистов предусмотрены парковочные места вокруг дома, подземный паркинг и гаражный кооператив поблизости. Квартира принадлежит одному взрослому собственнику, никто не прописан, что упрощает сделку. Объект полностью готов к заселению и не требует дополнительных вложений. Сочетание продуманной планировки, качественной отделки, удобного расположения и готовой инфраструктуры делает эту недвижимость выгодным предложением для семейного проживания. Код пользователя: 174907 Номер в базе: 8517892 Продается 4-комнатная квартира в микрорайоне Гагарина в городе Балашиха.


































































































