


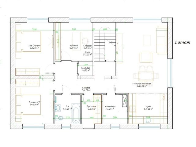
Новый 2-х этажный коттедж 194,5 кв.м на участке 6 соток в КП Новая Дятловка. Ключи - ноябрь 2025г. Завершается внешняя отделка фасада. Дом без внутренней отделки. Семейная и IT ипотека - 6%. Планировка по проекту: 1 этаж: Просторная кухня-гостиная 33 кв.м с окнами на три стороны света и панорамной дверью на крытую террасу; три комнаты (10/12/14 кв.м), ванная комната, бойлерная, гардеробная, прихожая. Высокие потолки- 3 метра. 2 этаж: Три спальни (17/16/22), с/у с душевой, много мест для хранения. Потолки - 3 метра. Коммуникации: Электричество и магистральный газ заведены на участок. Земельный участок: 6 соток, ровный, правильной формы, перед домом предусмотрено место для парковки 2-х авто. Забор - металлический штакетник высотой 2м. Назначение - индивидуальное жилищное строительство (ИЖС). Прописка - деревня Дятловка, г.о. Балашиха. Без проблем прикрепиться к садику, школе, поликлинике. Коттедж построен из высококачественных материалов с соблюдением всех технологий: - Фундамент: Свайный с ростверком (монолитный с армированием) с заглублением 3м; - Стены: Газобетонный блок Бонолит, толщина внешних стен 400мм; - Фасад: Штукатурка, покраска, фасадный декор; Цоколь утеплен и облицован термопанелями; выполнена отмостка; - Кровля: Двухскатная из метало-черепицы с установкой снегозадержателей и водосточной системы; - Окна Melke: Металло-пластиковые двухкамерные стеклопакеты с поворотно-откидным механизмом и французским балконом с кованным ограждением на 2-м этаже; - Крыльцо с навесом; - Входная металлическая дверь. О поселке: Асфальтированные дороги. Общее освещение. Закрытая территория. В поселке оборудована детско-спортивная площадкас воркаутом и зоной отдыха, отдельной площадкой для малышей и теннисным столом. Чистый и свежий воздух, удаленность от трасс и многоэтажек,тишина и уединение с природой и при этом оптимальное расстояние до города- всего 3 км от мкр. Железнодорожный и 17 км от МКАД (м. Новокосино). Инфраструктура: Все поблизости: Детский сад, школа, амбулатория, парк, банк, почта, спортивный комплекс с плавательным бассейном в Агрогородке - 10 мин на авто/автобусе. В д.Дятловка расположена остановка школьного автобуса, где утром забирает, а после уроков привозит ребят школьный автобус. В шаговой доступности Вкус Вилл, Пятерочка, пункты Яндекс/Озон/Валдбериз, аптека и тд. ТЦ, рестораны, кафе, сетевые магазины и другая социально-бытовая инфраструктура расположена в городе Железнодорожном - 15 минут на авто. Как добраться: От коттеджного поселка до остановки автобуса 10 минут пешком. Автобус 26 идет до ж/д станции "Черное"- 10 минут, до ж/д станции "Железнодорожная" - 20 минут. Открыт участок автомобильной трассы М12 Москва-Ногинск, легкое метро МЦД-4 (от Апрелевки до Железнодорожного), что значительно сокращает время в пути. Прямая продажа от застройщика. . Индивидуальная рассрочка до 12 месяцев. Специальное предложение: скидка 3% для многодетных семей и участников СВО! Семейная и IT ипотека - 6%. Добро пожаловать в Новую Дятловку!



















































































